体感展示場 MODEL HOUSE
-
近日オープン!【KARE家具付きモデル】「ミニマルモダン」こだわったインテリア、ハイセンスな空間富山市中島四丁目3号地
-
見学予約受付中!堀川小校区エリアに【平屋】モデルハウスが誕生!富山市パレットタウン大泉Ⅴ期4号地
-
見学予約受付中!駅近で人気エリアに【平屋】モデルハウス完成!富山市中冨居新町27号地
-
魚津市ウォークヒルズきちじま19号地魚津市ウォークヒルズきちじま19号地
-
\住宅展モデルハウス/ 婦中町ウエストヒルズ速星16号地富山市ウエストヒルズ速星16号地
-
【ご成約済】\ハイグレードモデル/アーカイブ
-
【ご成約済】~JAPANESE MODERN~ モデルハウスアーカイブ
-
\ご成約済/ COZY CORE(コージー コア) ~温かみのある心地よい住まい~アーカイブ
-
【ご成約済】\ ズボラでラクで楽しい家 “ZUBORAKU”/ だけど性能はしっかり!最高等級【断熱等級7・耐震等級3】アーカイブ
-
【ご成約済】11月末まで見学可能〈平屋〉高岡市出来田モデルハウス高岡市出来田
モデルハウス & ギャラリー
見学予約受付中!堀川小校区エリアに【平屋】モデルハウスが誕生!
〈子育てグリーン住宅支援事業 対象住宅 40万円交付対象〉※世帯条件等あり
断熱等級6クリア・ZEH仕様
高耐震・高断熱「プレウォール工法」(パネル工法)
外壁:高耐久 「金属サイディング」
大容量・暖房強化型LDKエアコン付き
キッチン:タカラスタンダード「GRANDIA」
LDKとつながったウッドデッキ付き
耐積雪150cm相当アルミカーポート2台用
富山市パレットタウン大泉Ⅴ期4号地
- 敷地面積
- 190.94㎡(57.76坪)
- 床面積1階
- 82.52㎡ (24.96坪)
- 床面積2階
- 延床面積
- 82.52㎡ (24.96坪)
- 施工面積
- 85.29㎡ (25.80坪)
お問い合わせも多くいただいている人気分譲地にモデルハウスがオープン!
断熱等級6クリア!ZEH水準
高断熱・高耐震 軸組みパネル工法「プレウォール工法」
外壁材はメンテナンスコスト削減!高耐久「金属サイディング」
子育てグリーン住宅支援事業 対象住宅40万円交付対象
※交付には世帯条件等があります
キッチンは、タカラスタンダード「グランディア」採用
ホーローキッチンは汚れが浸透しにくくお手入れが簡単♪
マグネットも使えて人気です。
LDKから眺めることのできるウッドデッキは、自然を感じるくつろぎの空間♪
分譲地内、消雪装置完備
断熱等級6クリア!ZEH水準
高断熱・高耐震 軸組みパネル工法「プレウォール工法」
外壁材はメンテナンスコスト削減!高耐久「金属サイディング」
子育てグリーン住宅支援事業 対象住宅40万円交付対象
※交付には世帯条件等があります
キッチンは、タカラスタンダード「グランディア」採用
ホーローキッチンは汚れが浸透しにくくお手入れが簡単♪
マグネットも使えて人気です。
LDKから眺めることのできるウッドデッキは、自然を感じるくつろぎの空間♪
分譲地内、消雪装置完備
ご希望の方にお譲りいたします
分譲価格
3,240万円(税込)
※各種負担金、外構工事含む・借入諸経費等別途
※建築確認番号/第R07確認建築富建セ0445号
※仲介:㈱安心住宅
※建築確認番号/第R07確認建築富建セ0445号
※仲介:㈱安心住宅
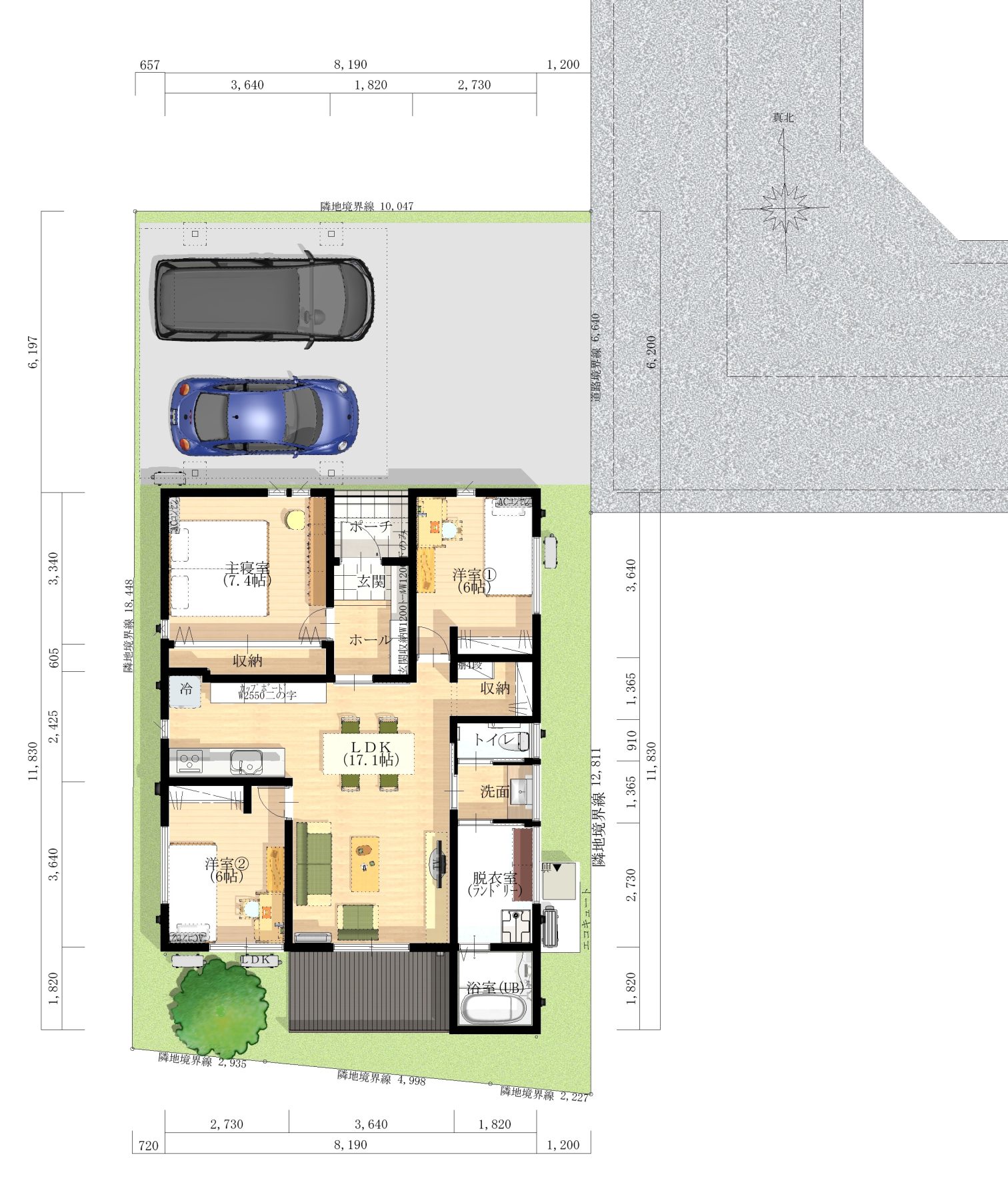
間取り
現地にてプランニング等の打ち合わせできます。
また、最新設備や作品ギャラリーもご覧いただけます。
また、最新設備や作品ギャラリーもご覧いただけます。


