自由設計の家モデルハウス READY-BUILT HOUSE
高岡エリア
NEW OPEN
高岡市和田
高岡市 やぶなみ駅前(木津の庄1期)1号地
高岡市やぶなみ駅前(木津の庄1期)・1号地
2025年12月完成予定
断熱等級6クリア・ZEH対応
やぶなみ駅まで徒歩約3分!駅近人気分譲地♪
モデルハウス購入相談受付中!
*ご成約特典付き*宅配ボックスプレゼント
高耐震・高断熱「プレウォール工法」(パネル工法)
自然な木目がナチュラルで落ち着いたコーディネート
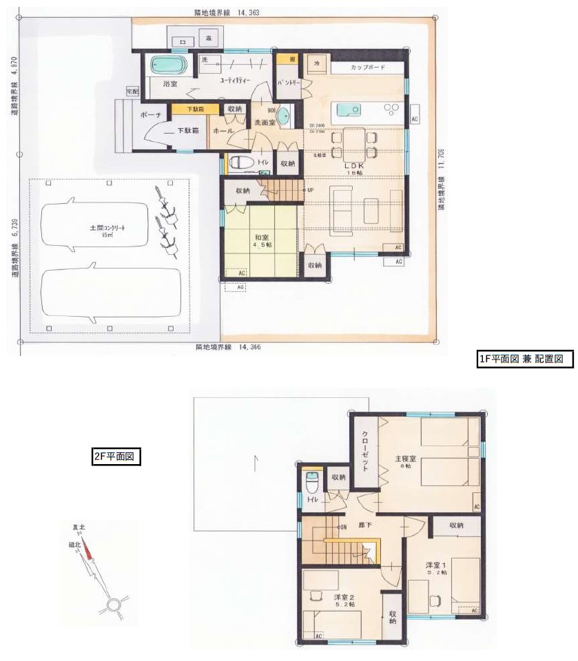
- 敷地面積
- 168.21㎡(50.88坪)
- 床面積1階
- 58.35㎡(17.65坪)
- 床面積2階
- 46.76㎡(14.14坪)
- 延床面積
- 105.11㎡(31.79坪)
- 施工面積
- 107.86㎡(32.61坪)
- 間取り
- 4LDK
充実の装備&機能
\オール電化住宅/
照明器具・エアコン(LDK用)・オープンキッチン・タッチレス水栓・カップボード・IHクッキングヒーター・食器洗浄機・エコキュート460Lフルオート・カラーモニター録画付インターホン・洗面化粧台・1,2Fトイレ・システムバス(浴室暖房乾燥機付き) ・洗濯機用水栓「ウルトラファインバブル」 ・アルミカーポート・外部コンセント・車用EVコンセントなど
照明器具・エアコン(LDK用)・オープンキッチン・タッチレス水栓・カップボード・IHクッキングヒーター・食器洗浄機・エコキュート460Lフルオート・カラーモニター録画付インターホン・洗面化粧台・1,2Fトイレ・システムバス(浴室暖房乾燥機付き) ・洗濯機用水栓「ウルトラファインバブル」 ・アルミカーポート・外部コンセント・車用EVコンセントなど
※各種負担金、外構工事含む・借入諸経費等別途
※建築確認番号:R06確認建築富建セ3121号
※仲介:㈱安心住宅
※1 子育てグリーン住宅支援事業・補助金40万円
〈 ZEH水準 〉
子育て世帯(18歳未満の子がいる)又は
若者夫婦世帯(どちらかが39歳以下)が対象
完了報告期限2026年7月31日まで
それまでに必要な手続きに2~3か月要する場合があります。
詳しくはお問い合わせください。
※補助事業のルールを双方で遵守。
※補助金不交付時の対応は協議のうえ決定
※建築確認番号:R06確認建築富建セ3121号
※仲介:㈱安心住宅
※1 子育てグリーン住宅支援事業・補助金40万円
〈 ZEH水準 〉
子育て世帯(18歳未満の子がいる)又は
若者夫婦世帯(どちらかが39歳以下)が対象
完了報告期限2026年7月31日まで
それまでに必要な手続きに2~3か月要する場合があります。
詳しくはお問い合わせください。
※補助事業のルールを双方で遵守。
※補助金不交付時の対応は協議のうえ決定
間取り


