推奨プラン建築条件付き売地建物参考プラン RECOMMENDED
建売住宅ではありません。間取りや仕様は、お客様のこだわりやご要望に応じて、自由にアレンジが可能です。
理想の住まいを形にする家づくりをサポートいたします。
射水エリア
【NEW】射水市 二口字轟3号地
大門小学校
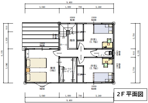
2階建て
断熱等級5
3LDK
断熱等級5クリア
開放感のある、対面式キッチン
広々、ウォークインクローゼット
- 敷地面積
- 147.51㎡(44.62坪)
- 床面積1階
- 57.77㎡(17.47坪)
- 床面積2階
- 50.32㎡(15.22坪)
- 延床面積
- 108.09㎡(32.69坪)
- 施工面積
- 110.57㎡ (33.44坪)
建築条件付売地
土地価格
681万円
※土地代金には別途仲介手数料がかかります。
売主・・・㈱とやまアイホーム
仲介・・・㈱安心住宅
売主・・・㈱とやまアイホーム
仲介・・・㈱安心住宅
建物本体価格
価格
2,173万円(税込)
外構工事費
価格
1,852万円(税込)
※この土地は、土地売買契約締結後3か月以内に、(株)とやまアイホームと建物の建築請負契約を締結することを条件に販売します。
この期間内に建築請負契約を締結されなかった場合は、土地売買契約は白紙となり、受領した手付金等の土地代金は全てお返しいたします。
この期間内に建築請負契約を締結されなかった場合は、土地売買契約は白紙となり、受領した手付金等の土地代金は全てお返しいたします。
※ 上記プランは一例です 。プランはお客様が自由に決定できます。
※ 上記 プランの場合、建物本体価格 ・外構工事費の他に、諸経費、付随費用や建築確認費用等が別途必要です。
※ 上記 プランの場合、建物本体価格 ・外構工事費の他に、諸経費、付随費用や建築確認費用等が別途必要です。


